ARCHITECTURE SAMPLES

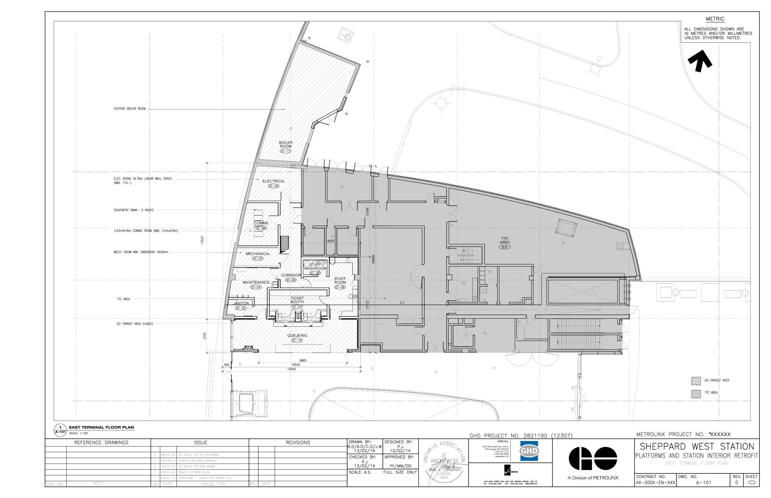
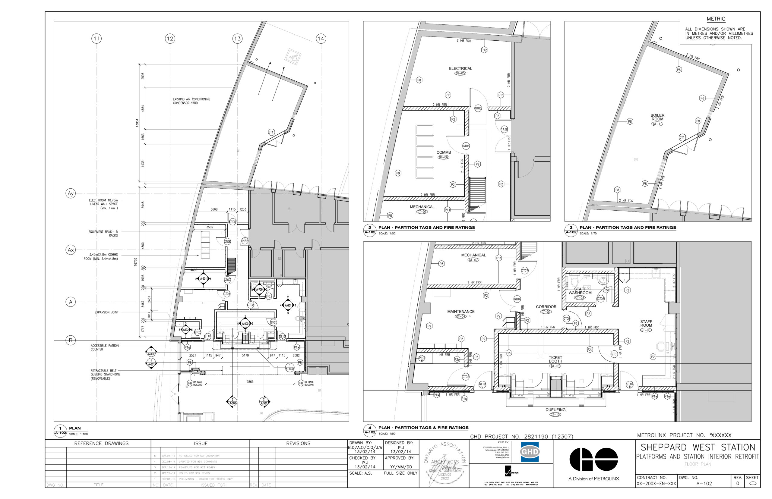
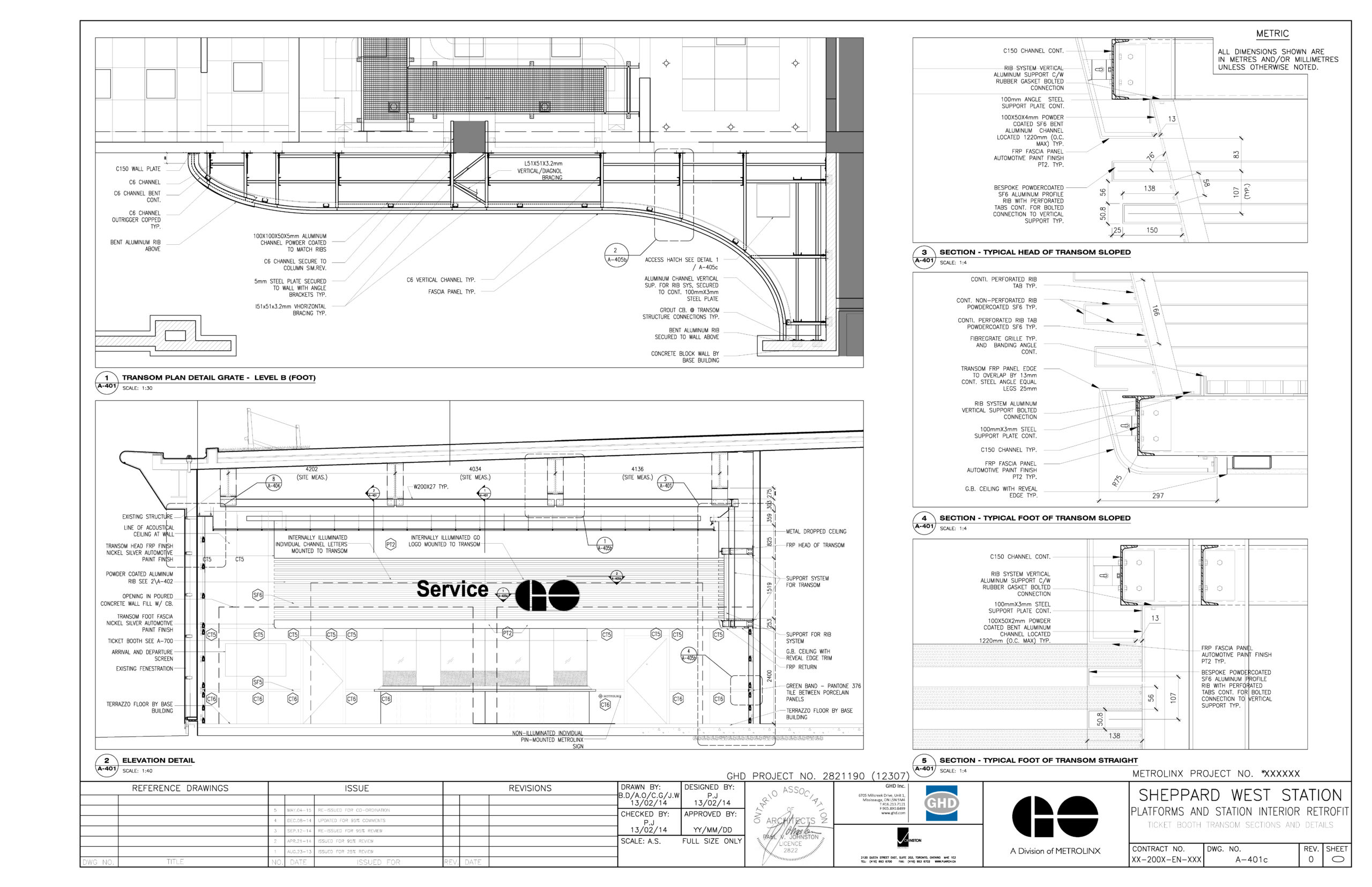
DOWNSVIEW PARK STATION

The GO Transit Downsview Park Station Ticket Sales Area is a part of a larger transit station serving both GO and TTC transit patrons. The design of the ticket area centers on a dominant transom that can be easily located by customers, contributing to way finding in and among the station. The program consists of two ticket sales booths, maintenance room, staff area and washroom as well as mechanical, electrical and communications room.

My responbilities included Design Lead, Design Development, 3D visualization, Consultant Coordination and Construction management. 

COMPLETED IMAGES

DRAWING SAMPLES

3D VISUALIZATIONS

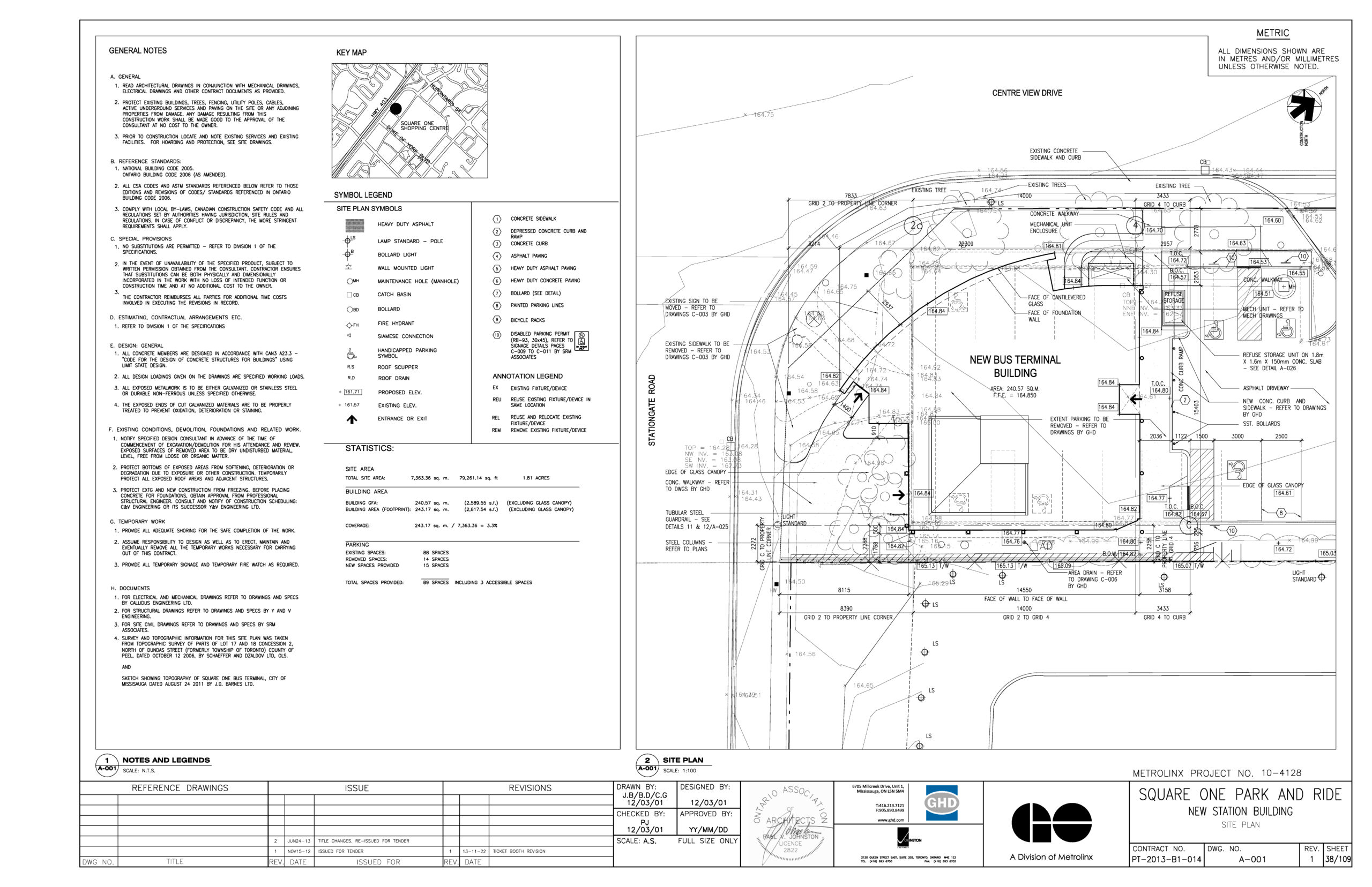
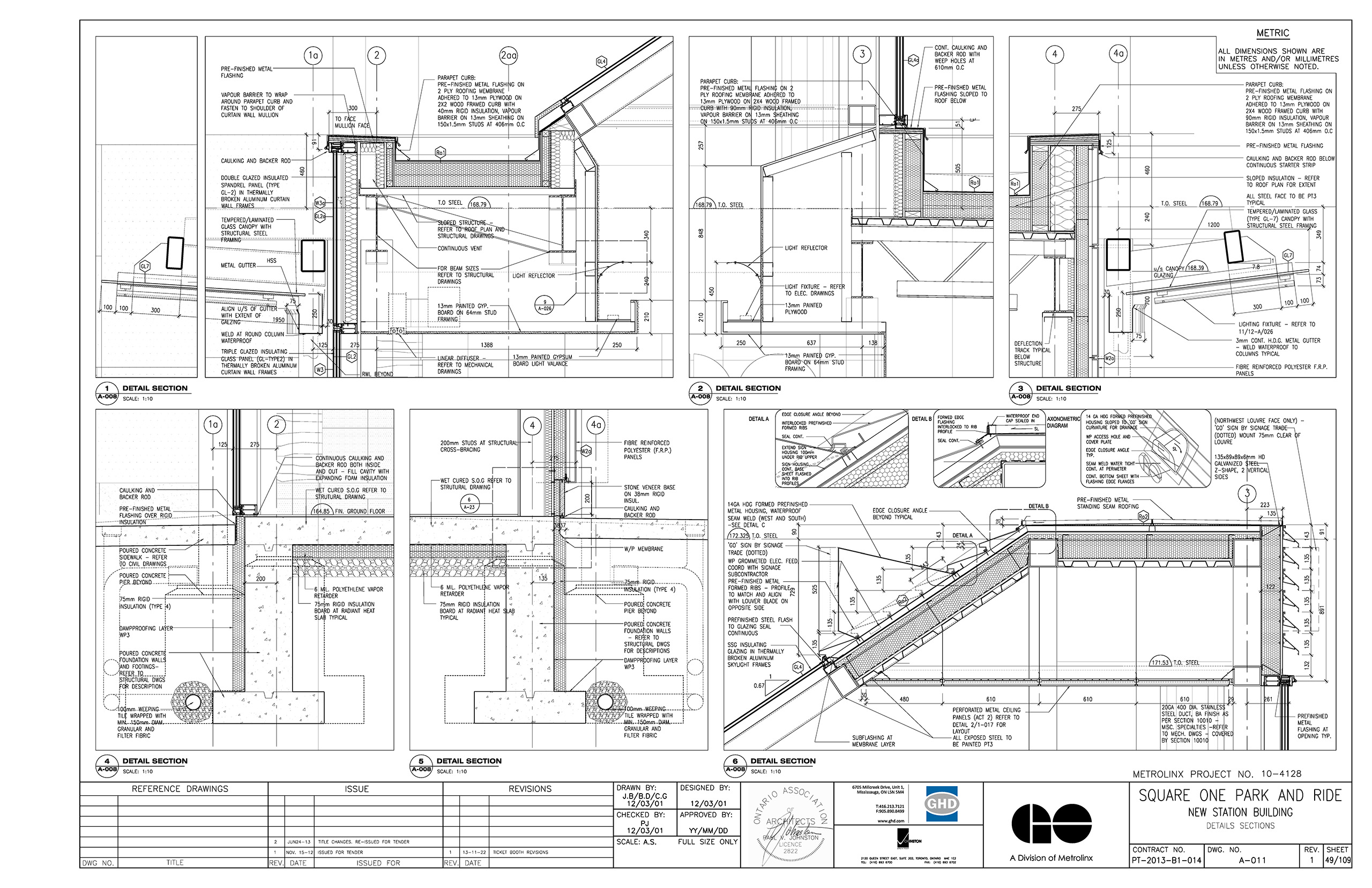
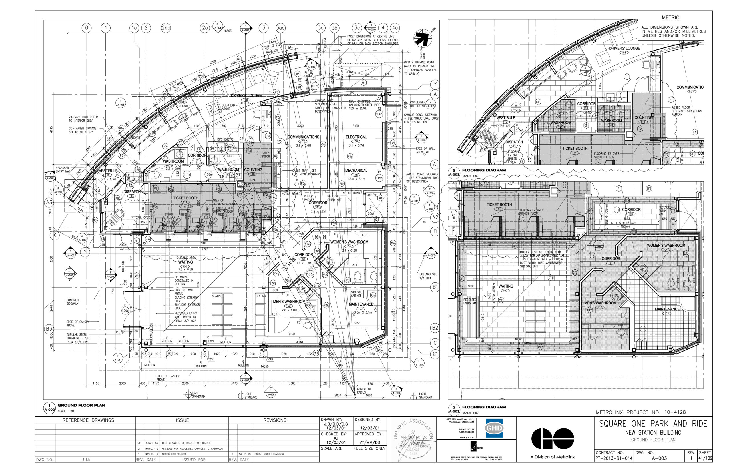
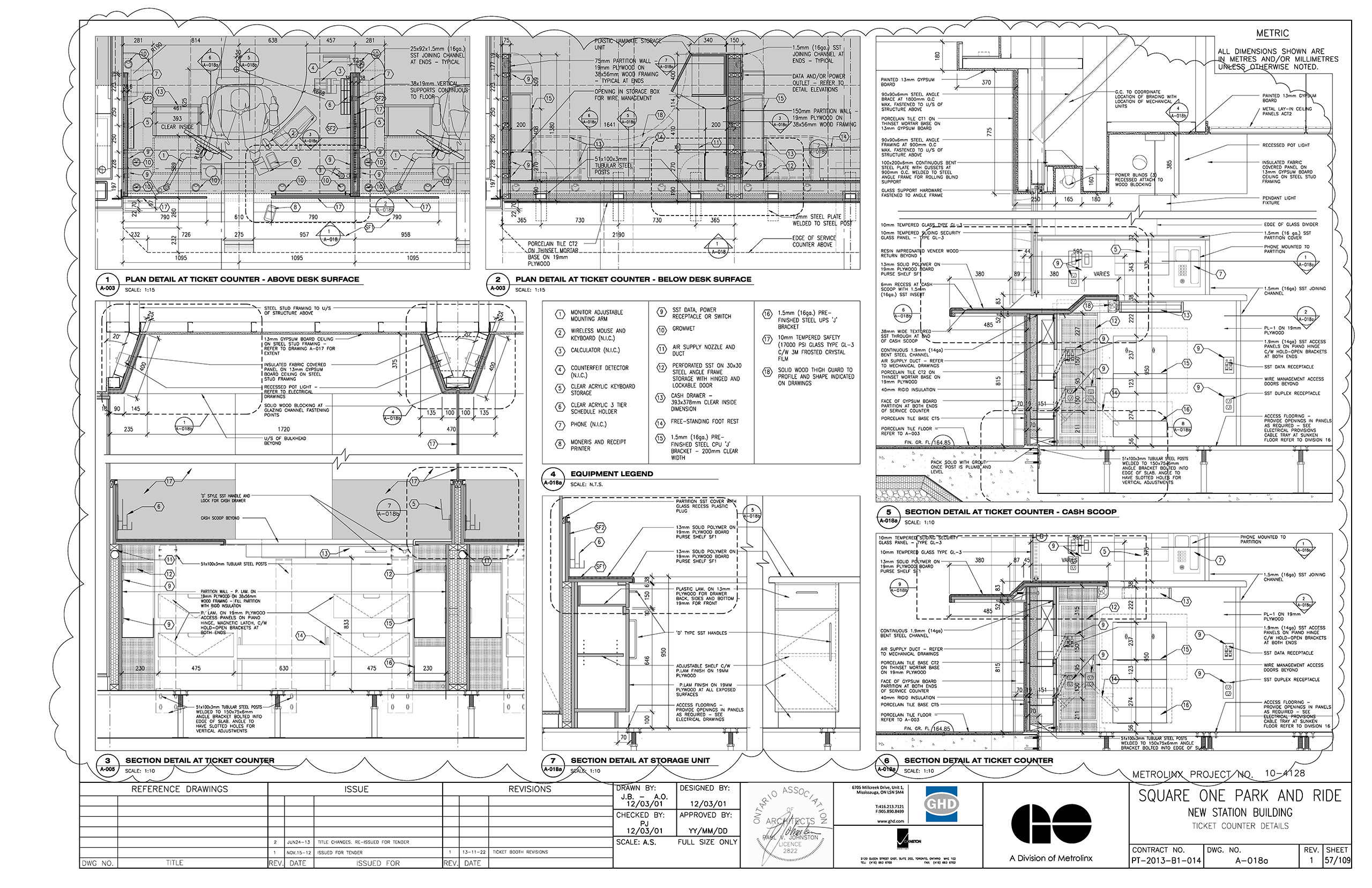
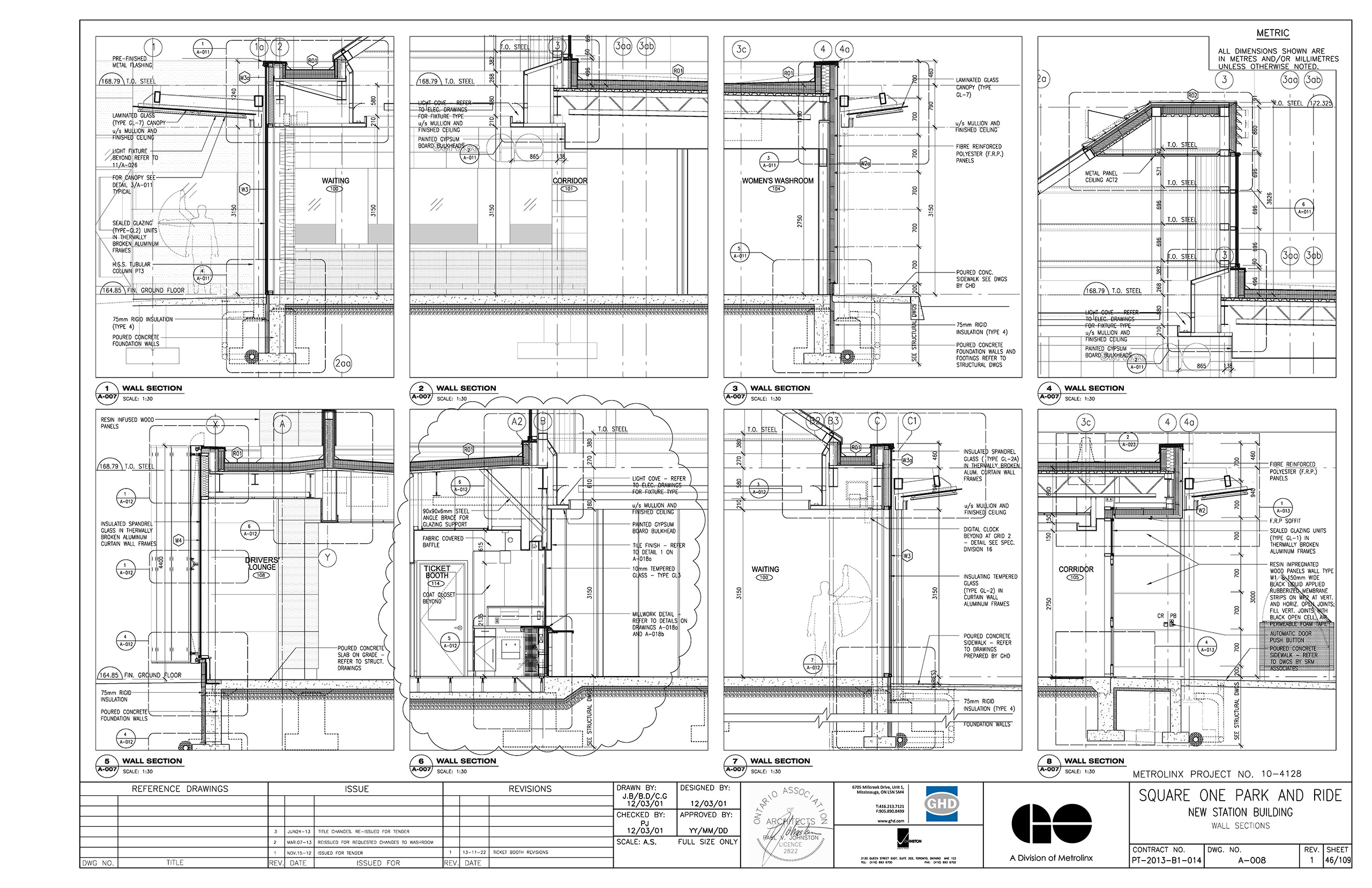
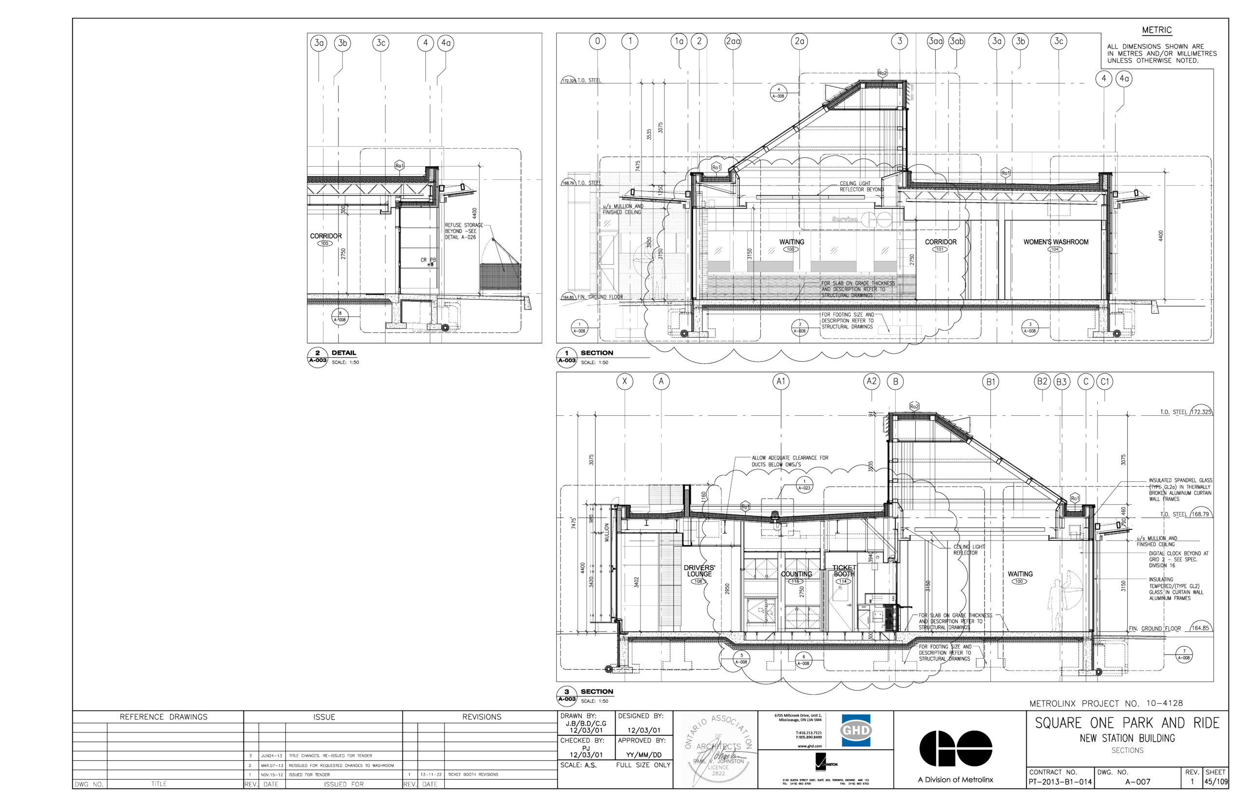
SQUARE ONE PARK & RIDE

An Art and Architecture conjuction for the new commuter Bus Terminal station for Square One, Mississauga. The facility includes a waiting area, washrooms, driver’s lounge, ticket office and dispatch, and features a dynamic north wall with an active kinetic “Light Wall.”

My responbilities included, Design Development, 3D visualization, Consultant Coordination and Construction management. 

COMPLETED IMAGES

DRAWING SAMPLES

3D VISUALIZATIONS

3D CONSTRUCTION DETAILS

CONSTRUCTION IMAGES

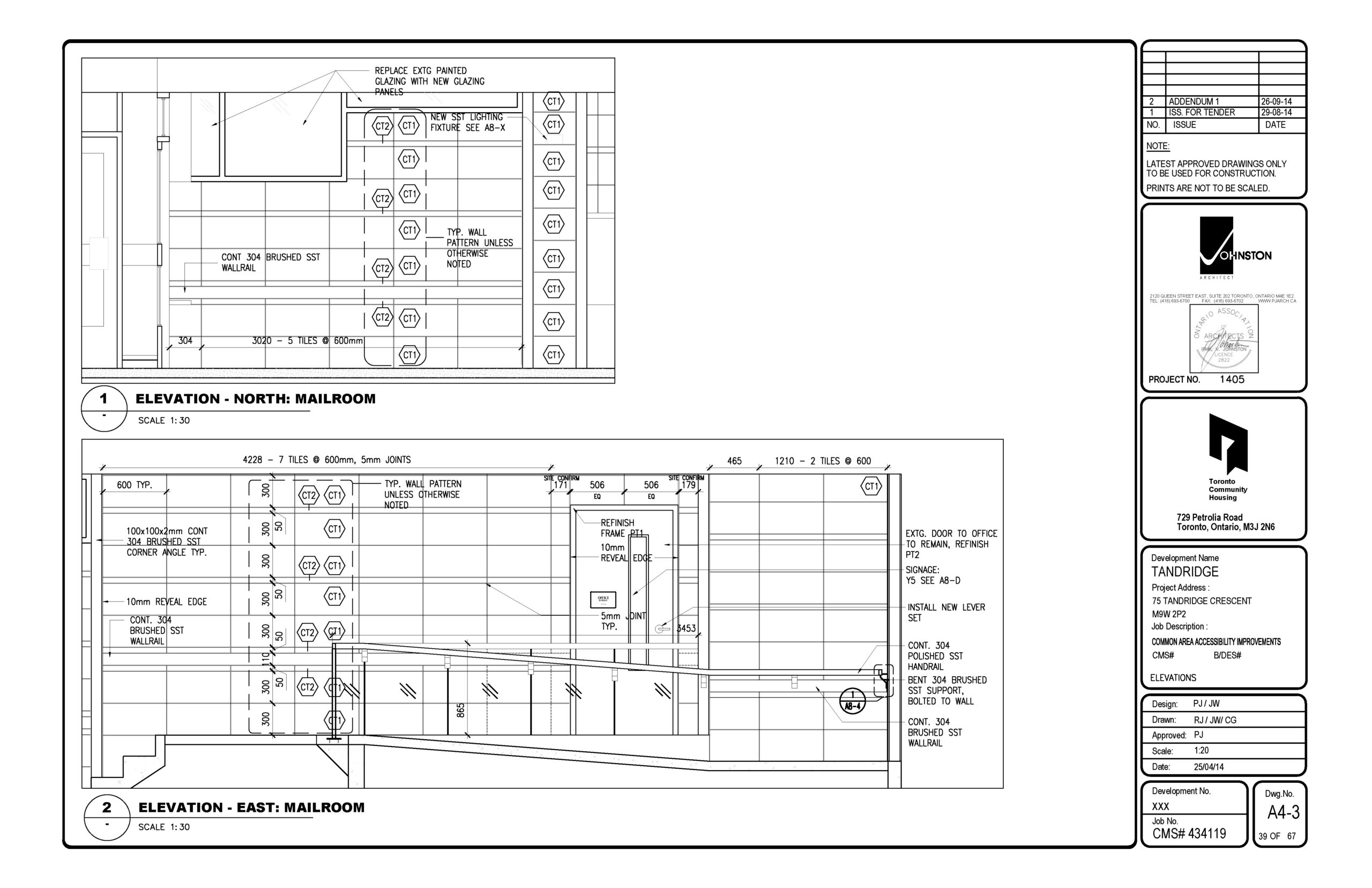
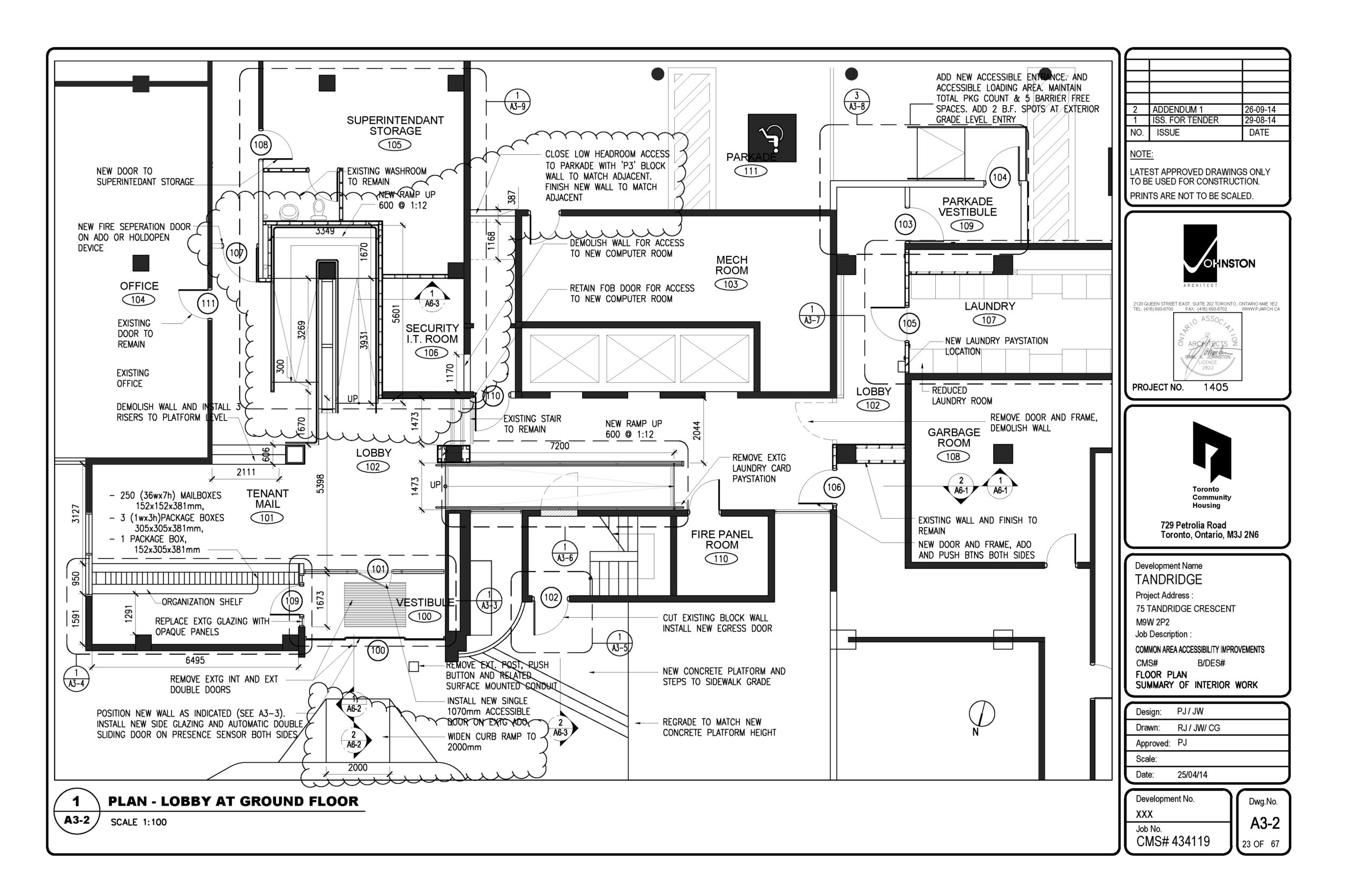
75 TANDRIDGE CRESCENT

Toronto Community Housing aimed to revitalize and repair one of their larger properties, with a number of quality of life improvements, fire safety improvements, and accessibility improvements. 

My responbilities included Design Lead, Design Development, 3D visualization & Consultant Coordination.

DRAWING SAMPLES

3D VISUALIZATIONS

Privacy Settings
We use cookies to enhance your experience while using our website. If you are using our Services via a browser you can restrict, block or remove cookies through your web browser settings. We also use content and scripts from third parties that may use tracking technologies. You can selectively provide your consent below to allow such third party embeds. For complete information about the cookies we use, data we collect and how we process them, please check our Privacy Policy
Youtube
Consent to display content from - Youtube
Vimeo
Consent to display content from - Vimeo
Google Maps
Consent to display content from - Google