ILLUMINARIUM TORONTO
Illuminarium Toronto is a fully immersive entertainment facility located in Toronto’s historic Distillery District.
After a successful collaboration on the content adaptation and installation of ‘Waking Wonderland’ at Illuminarium’s Atlanta facility, the idea for a joint venture developed wherein Illuminarium would construct a Toronto facility, with Secret Location serving as the vanguard for it’s design and construction.
As such I was responsible for leading all aspects of architectural design and construction management in association with consultant and contracting team, including – physical layout, technical planning and installation, customer experience, Ideation on varying types of immersive attractions for the main show space and public attract installs at the building exterior.



The Initial design included an adjacent unit in the building for retail and ticketing, and was designed around the ‘Waking Wonderland’ immersive show. It featured 4 immersive rooms with a more physically set-decked holding area that guests would use to enter and leave the space.
The design would evolve to more closely mimic other Illuminarium Venues with one smaller ‘intro’ room and one larger main room, so as to facilitate content adaption between the various Illuminarium venues.




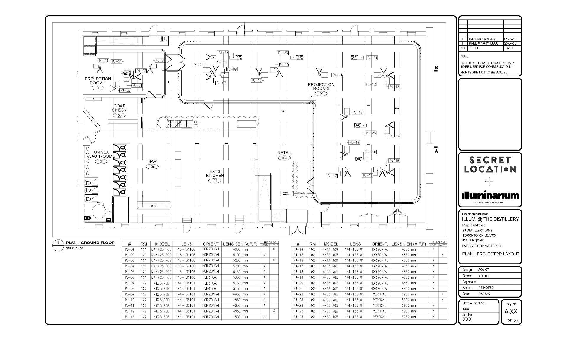
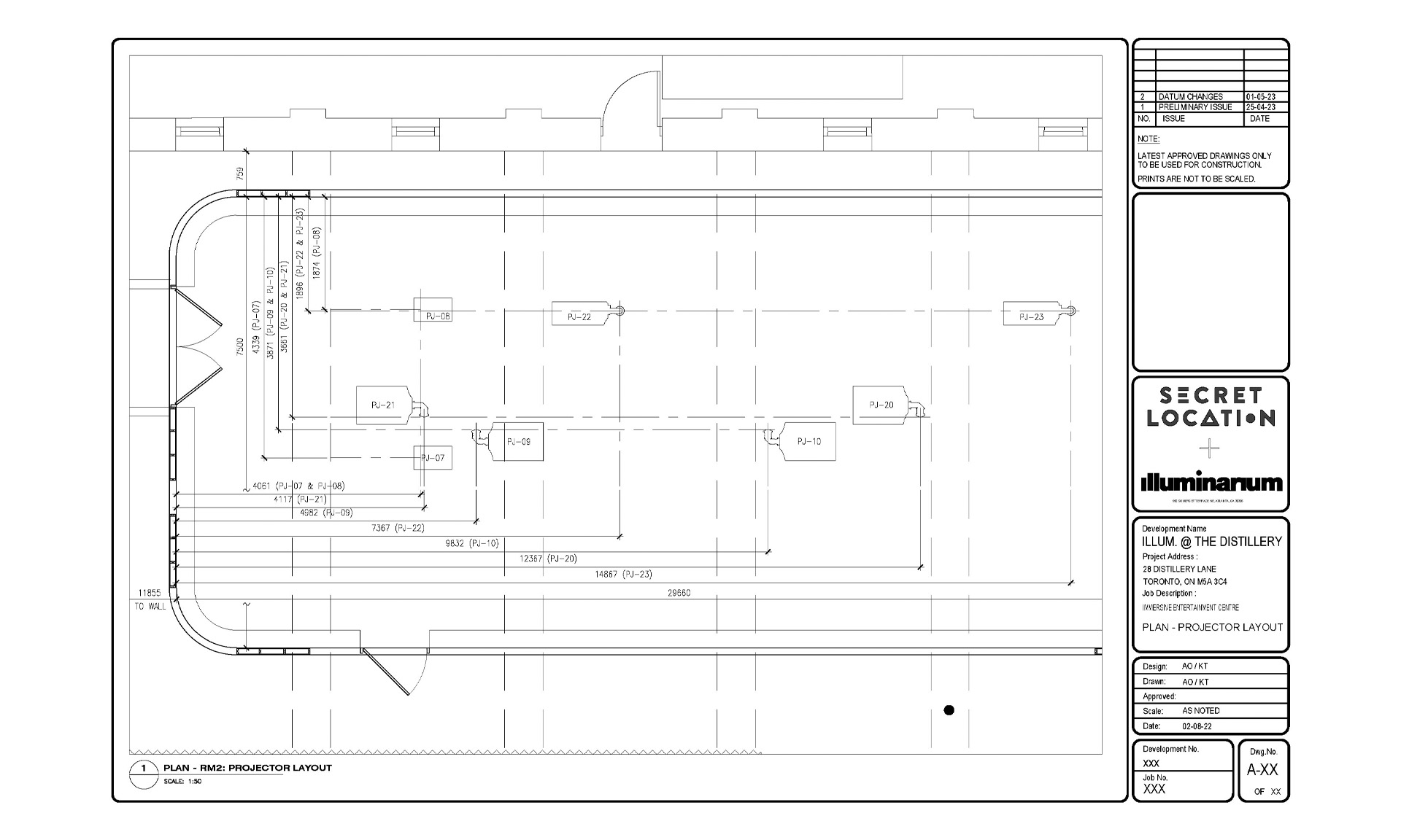
As part of the technical development for the venue, I was responsible for determining all projector positions and lensing needs, developing full architectural and technical solutions for a variety of issues such as exterior ticketing/attract booth design, server room location, custom in-wall speaker grills, bar layout + design. Additionally I was responsible for all on site direction and coordination with our AV consultant on all manner of technical needs from number and location of video servers, networking infrastructure, audio layouts, lighting layouts and more.
I developed many of my own tools from scratch – such as accurate projector simulators with lensing options and bodies included, as well as point cloud simulation tools for assisting with lidar sensor placement to be able to deliver the needs that the project required.



































































